회사소개
인사말
조직도
연혁
오시는길
사업소개
정부지원사업
RPS태양광
무자본태양광
임대형태양광
구조물소개
알루미늄합금 구조물
지상·지붕형 설치과정
시공사례
건물형
토지형
사업현황
시공실적
수주실적
특허
고객지원
고객문의
고객게시판
뉴스레터
회사소개
인사말
조직도
연혁
오시는길
회사공장
사업소개
RPS태양광
무자본태양광
임대형태양광
구조물소개
알루미늄합금 구조물
지상·지붕형 설치과정
지붕 강판
시공사례
건물형
토지형
사업현황
시공실적
수주실적
특허
고객지원
고객문의
고객게시판
뉴스레터
TOP
Building type
건물형
시공사례
회사소개
사업소개
구조물소개
사업현황
고객지원
건물형
토지형
건물형 시공사례
(주)한국그린에너지·(주)한국그린전력은 친환경 에너지의 보급과 밝은 미래를 위해 최선을 다합니다.
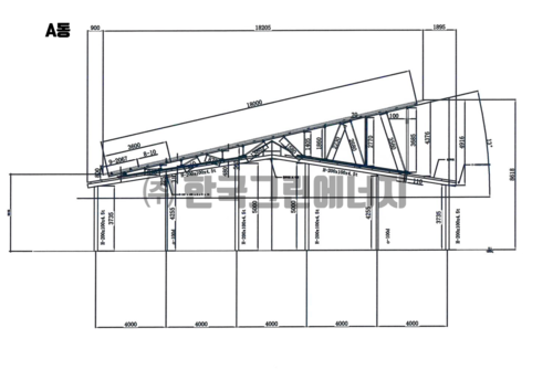
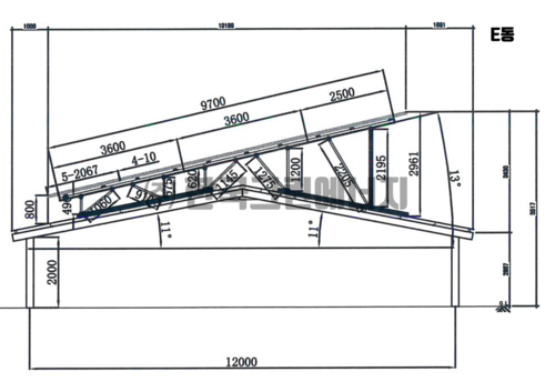
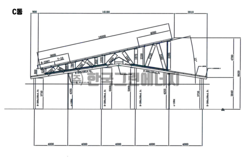
두원태양광발전소_500kW
목록
본문
2019.10 / 두원 태양광발전소
이전글
심원태양광발전소_ 30kW
20.12.24
다음글
형석태양광발전소_30kW
20.12.24